Projects
Skills
About
Projects
Skills
About
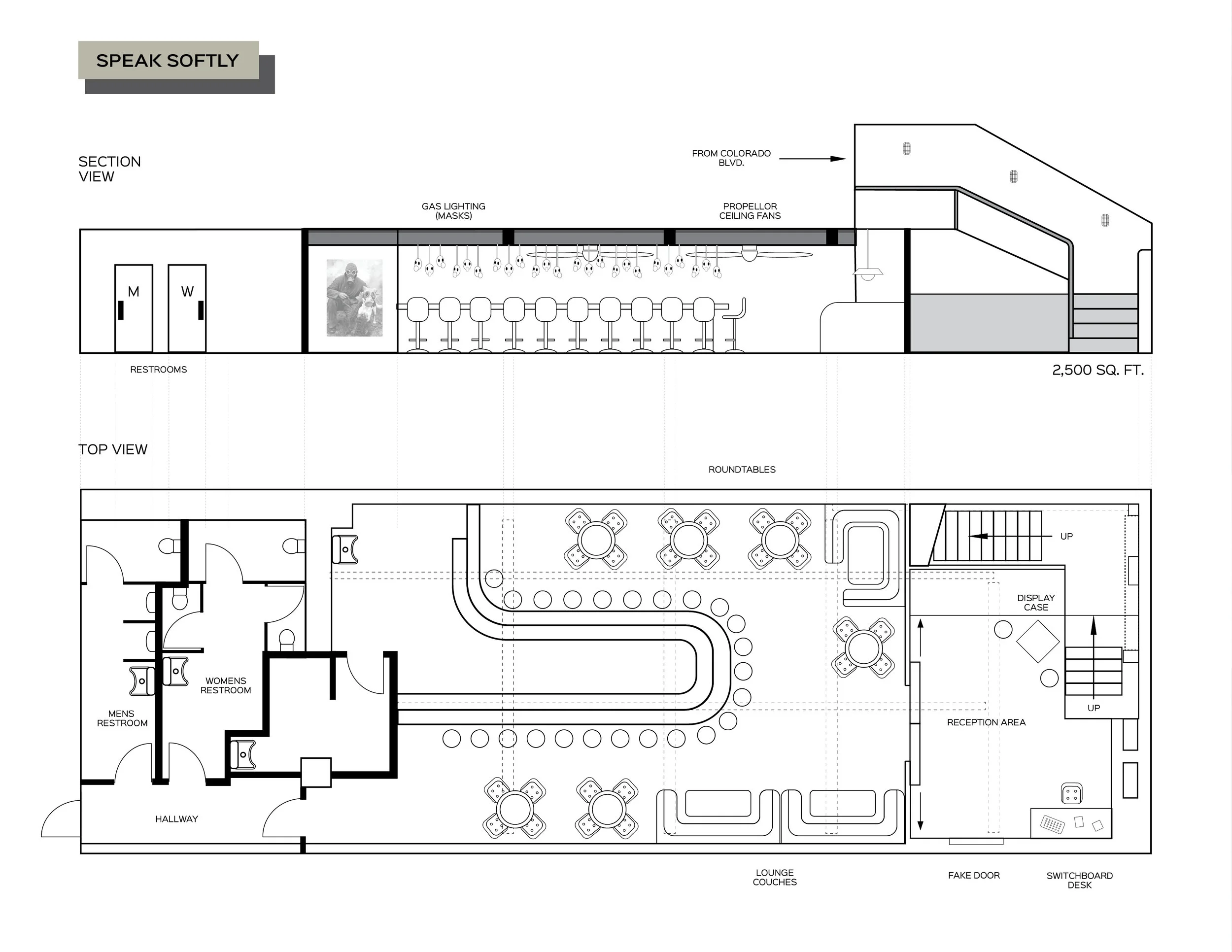
Stinky Black Environment
THE ENVIRONMENT
Here is how I explored sharing the brand style in a physical space.
Projects
STINKY DESIGN PROCESS